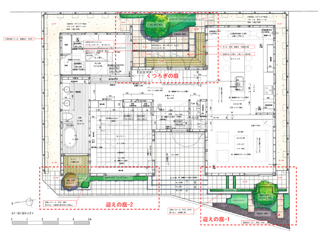
2009年 東京都 住宅展示場

平面図。